Penthouse · Neue Gebäude Estepona. Málaga

Penthouse · Neue Gebäude Estepona. Málaga

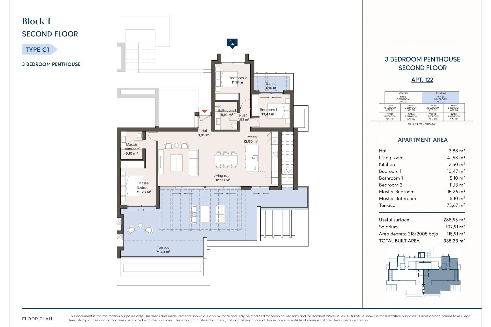
  • 335m2
  • 2
  • 3
  • Ja

Charakteristik

Schlafzimmer Schlafzimmer:

3

Das Badezimmer Das Badezimmer:

2

Gebaut Gebaut:

335m2

Nützlich Nützlich:

288m2

Schwimmbad Schwimmbad:

Ja

Entfernung zum Strand Entfernung zum Strand:

800 Mts.

Solarium: Yes
Beach: 800 Meters
Terrace: 182 Msq.
Useable Build Space: 288 Msq.
Gated
Near Golf / Golf Resort Property
Location: Coastal, Urbanisation
Double Bedrooms: 3
Near Trees
Near Schools
Near Commercial Center
Elevator/Lift
Communal Pool
Number of Parking Spaces: 2
Heating: Yes, Air Conditioning: Yes

Beschreibung



Ort

Kontaktformular

Responsable del tratamiento: Invest Tropical Mar Menor, SL, Finalidad del tratamiento: Gestión y control de los servicios ofrecidos a través de la página Web de Servicios inmobiliarios, Envío de información a traves de newsletter y otros, Legitimación: Por consentimiento, Destinatarios: No se cederan los datos, salvo para elaborar contabilidad, Derechos de las personas interesadas: Acceder, rectificar y suprimir los datos, solicitar la portabilidad de los mismos, oponerse altratamiento y solicitar la limitación de éste, Procedencia de los datos: El Propio interesado, Información Adicional: Puede consultarse la información adicional y detallada sobre protección de datos Aquí.
WhatsApp